プラムハウス 103号室 世田谷区経堂[アパート]

プラムハウス 103号室 世田谷区経堂[アパート]

アパート[世田谷区経堂]

千歳船橋の高級賃貸からペット可賃貸など様々な物件をご用意しております。

  • 03-5477-0521
  • 09:30~19:00 定休日:水曜日

会員の方

閉じる

物件詳細

プラムハウス 103号室 世田谷区経堂[アパート]

 

プラムハウス 103号室 世田谷区経堂[アパート] の物件詳細ページです。

物件種別: アパート

お問い合わせ番号:0000016356

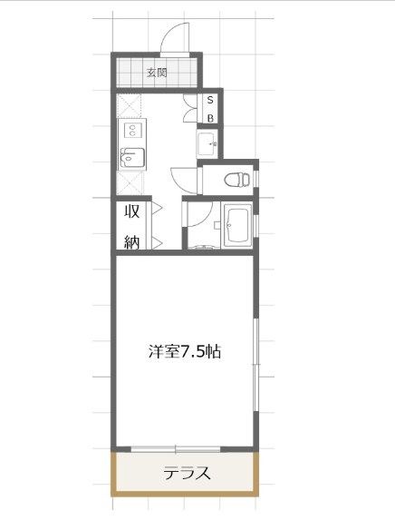
間取り(面積)

1K

( 23.5㎡ )

賃料(管理費等)

6.7万円

( 0円 )

交通: 小田急線 千歳船橋駅 徒歩2分

敷金/礼金: 1ヶ月 / 1ヶ月

保証金/敷引/償却金: - / - / -

所在地: 世田谷区経堂

築年月: 2007年3月

ポイント

小田急線急行駅で人気の“経堂駅”徒歩5分以内の閑静な住宅街に立地☆

問い合わせ(無料)

TEL: 03-5477-0521

お問い合わせ番号: 0000016356

QRコード

資料請求などはこちら

問い合わせ(無料)

TEL: 03-5477-0521

お問い合わせ番号: 0000016356

スタッフからのコメント

地元に詳しいスタッフが精一杯頑張らせていただきます。(株)清照は、地元密着の不動産会社で小田急線千歳船橋と経堂駅に2店舗あり沿線中心に多数物件のほう取り扱っておりますので、是非一度ご来店くださいませ。

セールスポイント

特徴 準耐火構造,駅まで平坦,バス2路線,保証人(要)
設備 ガスキッチン,シャワー,洗面台,洗面化粧台,エアコン,ガス給湯,シューズボックス,ガス(都市ガス),下水(公共下水),水道(公営),電気
天井高 空調 1基
部屋外設備 ベランダ
駐車場 駐車場:近隣駐車場 23000~25000円/月 駐車場まで200m 駐車場敷金:1ヶ月 駐輪場:有
周辺施設 コンビニ:セブンイレブン 世田谷千歳船橋駅北店 97m
銀行:みずほ銀行 千歳船橋支店 (みずほパーソナルスクエア千歳船橋) 97m
スーパー:まいばすけっと経堂4丁目店 97m
スーパー:ローソンストア100 千歳船橋駅北店 97m
ドラッグストア:ヘルスケアセイジョー 千歳船橋店 97m
小学校:世田谷区立桜丘小学校 97m
歯科:渡上歯科医院 123m
幼稚園:ファーストクラスルーム世田谷 207m
小児科:ちとふなキッズクリニック 187m

物件概要

物件名 プラムハウス 103号室
物件所在地 東京都世田谷区経堂4丁目19-11 周辺地図
交通機関 小田急線 千歳船橋駅 徒歩2分
小田急線 経堂駅 徒歩14分
間取り詳細 洋室(7.5畳)
専有面積 23.5㎡
所在階/地上階数 1 / 2 部屋向き
建物構造 木造 築年月 2007年3月
総戸数 6
賃料 6.7万円 管理費等 0円
敷金 1ヶ月 礼金 1ヶ月
保証金 - 更新料 新賃料 1ヶ月
積増し敷金 - 積増し理由
損害保険 有 料金:25000円 損保期間:24ヶ月 
契約形態 普通借家契約 期間 契約期間:2年
保証会社 必須 初回保証料:総賃料の50%~ 保証人代行 必須
現況 居住中 入居時期 相談 
入居条件 ペット(不可),楽器等の使用(不可),学生(不可),性別(女性限定),飲食店(不可)

その他

取引態様 仲介 自社管理番号 0000016356
情報更新日 2026年3月31日 次回更新予定日 2026年4月14日
不動産会社コード 2103787 物件管理コード 1133480811230000014106
  • ※間取りの「S」はサービスルーム(納戸)です。
  • ※QRコードは(株)デンソーウェーブの登録商標です。

資料請求などはこちら

問い合わせ(無料)

TEL: 03-5477-0521

お問い合わせ番号: 0000016356

お問い合わせ先:株式会社清照 本店

所在地 : 東京都世田谷区桜丘2丁目20-8
TEL : 03-5477-0521
免許番号 : 東京都知事(6)第71434号
加盟団体 : 社団法人 東京都宅地建物取引業会

この部屋を見学予約

ホームへ戻る